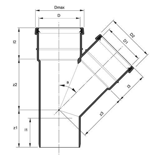
PP-HT KOLMIK 32X32/88° S14 VALGE

PIPELIFE PP-HT hoonekanalisatsiooni süsteem on mõeldud hoonesiseseks reovee ärajuhtimiseks. Pipelife hoonekanalisatsiooni süsteemis on torud ning liitmikud mõõtudega 32, 40, 50, 75 ja 110mm. Hoonesiseste torustike jäikusklasse mõõdetakse näitajaga S, kus väiksem number tähendab suuremat seinapaksust ja suuremat jäikusklassi. Näiteks S14 toru on suurema seinapaksusega, kui S20 toru. Kui otsid kindlat ja kvaliteetset kanalisatsioonilahendust, siis Pipelife PP-HT torud on nutikas ja pikaajaline investeering. PP-HT torudel ja liitmikel on tänu kummitihenditega ühendustele lekketihedus ja pikem eluiga. Ø 32-50 mm, PP käänikud, kolmikud ja teised liitmikud, S14, hoonete sisse ja hoonetest välja kinnitatuna hoone konstruktsiooni külge (kasutusala kood „B“)
Ø 75-110 mm, PP käänikud, kolmikud ja teised liitmikud, S14, S16, hoonete sisse ja hoonetest välja kinnitatuna hoone konstruktsiooni külge, lisaks maetuna pinnasesse ning betoneerituna
(kasutusala kood „BD“).
Ø 75-110 mm, PP käänikud, kolmikud ja teised liitmikud, S20, hoonete sisse ja hoonetest välja kinnitatuna hoone konstruktsiooni külge (kasutusala kood „B“).

  • Tootekood: 3496100124

Võta meiega ühendust

OTSI
Otsi kõigist tootedokumentidest

Võta meiega ühendust

Saatke meile oma küsimused, tagasiside ja kommentaarid ning võtame teiega esimesel võimalusel ühendust

E-post
Võtame teiega ühendust e-posti teel